おといあわせ
株式会社プリード
本     社:197-0802 東京都あきる野市草花1117-イ
技術研究所:197-0012東京都福生市加美平1-26-8笹本ビル
        TEL042-539-3755 FAX042-539-3757
URL:http://www.prede.com http://nissyakei.com E-mail:sales@prede.com

概 要

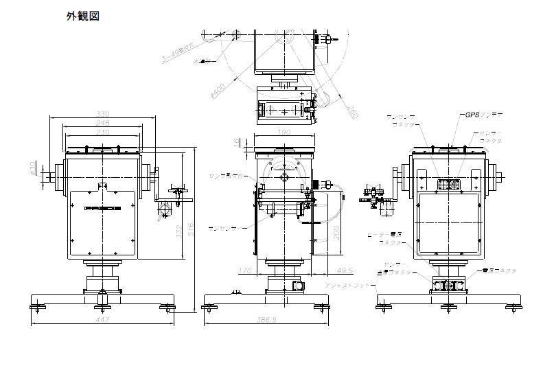
  本装置は、直達日射計やサンフォトメーターを搭載し直達光を取り入れる為太陽を自動追尾する装置です。太陽位置センサーを取り付ける事により内蔵CPUで完全自動追尾が可能です。 緯度、経度、時間の設定は付属GPSから自動で設定されます。
ASTX-2はギヤドライブによりメンテナンスが簡単になりました。
追尾装置本体には搭載品用の中継入出力があり、搭載品のケーブルを追尾装置本体経由として、装置回転時のケーブルの引っかかりを防止することができます。
本体を支える三脚ベースは簡単に取り外すことができ、ポールの上にも取り付けられます。
搭載センサー:直達日射計CHP-1 PCH-2N、サンフォトメーター、遮蔽装置 等